Однокомнатная квартира в новостройке 35,00 м2 по ул. Фестивальная 27 за 2537000 руб.

Адрес
Адрес Фестивальная, 27
Описание
Цена 2 537 000 р. (72 486 р./м2)
Подать заявку на ипотеку
Количество комнат Однокомнатная
Этаж 2
Этажность дома 3
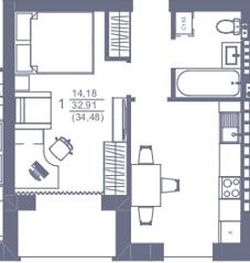
Общая S, м2 35,00
Жилая S, м2 16,00
S кухни, м2 9,00
🏠 В продаже однокомнатная квартира, S - 35 кв.м Теплый пол! 🏠расположение: ЖК Золотой квартал, с. Нежинка, 70 лет Победы ✅ предчистовая отделка WНIТЕ ВОХ. В которую входит: • Выровненный бетонный пол, уже подготовленный под любое финишное покрытие • Установленные оконные блоки с подоконниками, с выровненными откосами • Выровненные, оштукатуренные и прогрунтованные стены • Ровные подготовленные потолки • Готовая система отопления • Разведенная от электрощитка проводка по всем комнатам • Монтаж входной двери • Выполнены все сантехнические манипуляции, обустроены водопровод и канализация Одно из главных преимуществ этого дома – малое количество квартир, особая и уютная атмосфера, а также индивидуальное отопление каждой квартиры и подача горячей воды, для этого установлен двухконтурный газовый котёл НАVIЕN DЕLUХЕ. Большой плюс - сельская прописка - минус 70% на ОСАГО, а также расценки за газ и коммунальные услуги существенно сэкономят платежи из семейного бюджета. Дом обладает внешней привлекательностью, отличным теплоизоляционными и шумоизоляционными характеристиками. Весь квартал асфальтирован - проблем с парковкой нет, ежедневно школьный автобус отвозит и привозит детей с лицея, в ближайшей доступности уже построенный детский сад, торговая сеть Пятёрочка. Так же в самом ЖК имеется 2 продуктовых магазина, пекарня, своя Управляющая компания, фельдшерский пункт. ✅ Инфраструктура: рядом Европейский лицей, а также есть школьный автобус, который доставит Ваших детей до лицея. В 5 минутах - детский сад КРОНА, Пятёрочка, Магнит , Ваниль, своя Управляющая компания, фельдшерский пункт. Звоните id: 32540
Квартира в новостройке в Санкт-Петербурге
Дата 01.07.2025 23:17:36
Объявление № 22715023
Дата подачи:
2 июля 2025 г. 3:17
Дата обновления:
2 июля 2025 г. 3:17
Просмотров 22 Хотите продать быстрее?

Продавец
Агентство недвижимости:
Иохим Наталья Александровна
email: 612070av@gmail.com
Показать номер телефона
Пожаловаться
Комментарии:
Добавить